Oglas StanoviKragujevac-1594-1

Dvoiposoban stan na prodaju, 60m2, 111.000€

Šifra oglasa: StanoviKragujevac-1594-1
Kragujevac
Dvoiposoban, 60m2, sa terasom, ima lift

111.000 €

1.850,00 €/m2

Klikni da pozoveš ili pošalješ poruku
Kontakt telefon
Klikni na dugme da vidis broj
0693619770

Kliknite i ostavite kontakt kako biste saznali kako ovaj stan možete kupiti uz pomoć stambenog kredita:

Detalji oglasa:
Cena:
Kvadratura:
Tip objekta:
Stanje objekta:
Struktura:
Sprat:
Način grejanja:
Uknjiženost:
Dodatno:
111.000 €
60 m2
Stan
Lux
2.5
4/4
Gas
Nije uknjiženo
Terasa, lift
Oglas ažuriran: 08.10.2025 (17:25)
Oglas proveren: 11.11.2025 (13:25)

Opis oglasa:
Šifra oglasa:
StanoviKragujevac-1594-1
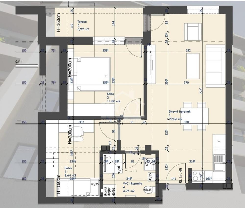
Dvoiposoban stan od 60m2 u novogradnji u Centru. Struktura: hodnik, kupatilo, dnevni boravak sa trpezarijom i kuhinjom koji ima izlaz na terasu, dve spavaće sobe od kojih jedna ima izlaz na istu terasu. Stan je deo novoizgrađenog stambenog objekta, kvalitetne gradnje, koji se nalazi na lepoj lokaciji, u mirnoj ulici u Centru. Blizina osnove škole, fakulteta, restorana i svih potrebnih sadržaja za svakodnevno funkcionisanje savremenog čoveka. Cena 111.000€ sa PDV-om.
Klikni da pozoveš ili pošalješ poruku
Kontakt telefon
Klikni na dugme da vidis broj
0693619770
Prijavi grešku u oglasu
Zakaži gledanje stana
Zakaži gledanje stana
Pitaj oglašivača
Selektuj šta te interesuje:
Pošalji pitanje

Podeli stan sa prijateljima
Kopiraj link

Kontaktiraj oglašivača
Alfa & Omega 034 - profilna slika
Klikni na *** za prikaz broja telefona
0693619770

Broj u registru: 616


Slični oglasi: