Oglas StanoviKragujevac-p-05869

Ćirila i Metodija, Četvorosoban stan na prodaju, 131m2, 190.140€

Šifra oglasa: StanoviKragujevac-p-05869
Kragujevac, Kragujevac centar - Ćirila i Metodija
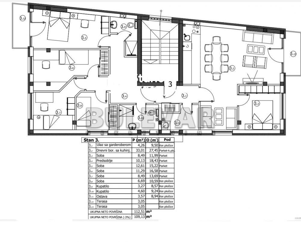
Četvorosoban, 131m2, Ćirila i Metodija Kragujevac, sa terasom, ima lift

190.140 €

1.451,45 €/m2

Klikni da pozoveš ili pošalješ poruku
Kontakt telefon
034 210 40 98

Kliknite i ostavite kontakt kako biste saznali kako ovaj stan možete kupiti uz pomoć stambenog kredita:

Detalji oglasa:
Cena:
Kvadratura:
Tip objekta:
Stanje objekta:
Struktura:
Sprat:
Način grejanja:
Uknjiženost:
Dodatno:
190.140 €
131 m2
Stan
Lux
4.0
5/7
Centralno
Uknjiženo
Terasa, lift
Oglas ažuriran: 15.09.2023 (14:55)
Oglas proveren: 28.10.2025 (17:25)

Opis oglasa:
Šifra oglasa:
StanoviKragujevac-p-05869
Stan se nalazi u širem centru grada, a nadomak svih dešavanja. Stanovi su urađeni po najvišim standardima i normativima u građevinarstvu. Stan je projektovan tako da bude funkcionalan za život , grejanje centralno. U cenu stana je uračunata posrednička provizija od kupca u iznosu od 1,5posto. Ovo je topla preporuka Bulevar grupe. Za sve informacije i razgledanje stojimo vam na raspolaganju, radnim danima od 09-19h i subotom od 09-17h. Ovu i druge nekretnine sa većim brojem fotografija možete pogledati na našem sajtu. usluga besplatna. Čekamo Vas. Telefon 034/330808 i 034 210 40 98. Bulevar Nekretnine 034, Kragujevac, broj u registru posrednika: 1278.
Adresa Ćirila i Metodija
Klikni da pozoveš ili pošalješ poruku
Kontakt telefon
034 210 40 98
Prijavi grešku u oglasu
Zakaži gledanje stana
Zakaži gledanje stana
Pitaj oglašivača
Selektuj šta te interesuje:
Pošalji pitanje

Podeli stan sa prijateljima
Kopiraj link

Kontaktiraj oglašivača
Bulevar nekretnine - profilna slika
Broj u registru: 519

Povezane pretrage:

Slični oglasi: